For Sale
Former Lighthouse Keeper’s Apartment
Flat-3
Offers Over £99,000 “as is”
This is a one-bedroom flat for sale at Tod Head Lighthouse Station for sale. Originally built in 1897 as a lighthouse keeper’s dwelling.

^^ Flat-3, Tod Head Lighthouse Station ^^
^^ Kinneff, By Montrose, Aberdeenshire, DD10 0TH ^^
Located in a rural area, with spectacular coastal views, this former lighthouse keeper’s home has off-street parking and good access to shops, schools, doctors, dentists etc., in the nearby towns of Stonehaven and Inverbervie, with Montrose for a wider retail fulfilment. Home delivery services deliver here to the lighthouse from local supermarkets too.
.^^ Flat-3, Tod Head Lighthouse Station ^^
^^ Kinneff, By Montrose, Aberdeenshire, DD10 0TH ^^
Main Accommodation Block
For residents needing access to airports, this lighthouse station is approximately 25 miles south of Aberdeen Airport and 48 miles from Dundee Airport: here.
This first floor (former) lighthouse keeper’s flat retains a splendidly remote sanctuary feel to the place, yet is remarkably well connected to airports all across the U.K., and indeed served well by airlines from all across the world, given the proximity to two major airports.
^^ This Former Lighthouse Keeper's Flat ^^
^^ Has Sea Views From All 3 Sides ^^
Here is a short video to provide perspective. It helps illustrate how the windows for Flat-3 have the best all-round sea view of the entire accommodation block….
.
^^ Tod Head Lighthouse Station ^^
^^ A short video to provide perspective ^^
^^ Courtesy of and with thanks to Craig Roy ^ ^ .
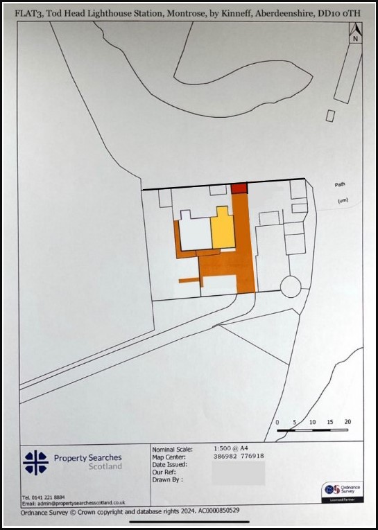
Here in the next picture, is the ownership Title-Plan for Flat-3 (shaded yellow). The title ownership includes an off-street parking area within the compound (shaded red)…
^^ Flat-3 Title Plan ^^
The First-Floor Flat Number 3 Footprint Is: Shaded Yellow – Yellow.
Parking Area For Flat Number 3: Shaded Red – Red.
Access Right To Walk/Drive Over In Perpetuity: Shaded Orange – Orange.
A parking place is included in this sale (as per the red coloured area on the title-deed plan above).
The allocated/owned parking spaces will be clearly marked out by standardised parking bay outlines, though more subtle in colour than this illustration: here.
^^ A Parking Space Has Been Allocated For ^^
^^ Ownership of Flat-3 ^^
Light grey parking space lines will
demarcate each parking space for clarity (eg: here)
*******
Additional parcels of land outside the Tod Head lighthouse compound may be purchased by separate negotiation…
^^ Tod Head Lighthouse Station ^^
^^ Area Owned By Russ McLean ^^
The Lighthouse Tower is not included.
Also, the spare flats being sold will be
wholly owned by each new purchaser.
Copyright Licence HMLR: 100026316 & Ordnance Survey: 100052015
If you wish to purchase extra land, please contact the owner: click here..
To provide a clear idea of the location of Flat-3 for sale within the main accommodation block, the apartment that you would own it is outlined in yellow ink on this next photograph…

^^ Flat-3: Top Right: Outlined In Yellow ^^
^^ Offers Over: £99,000. ^^
The ground floor part, outlined in red ink, is not for sale at this time.
Next is a floorplan for this first-floor Flat-3. The details are given in good faith and as accurate as we can make them. Buyers must rely on their own measurements for hyper accuracy when arranging for carpets and redecoration etc.

^^ Guide Floorplan For Lighthouse Keeper’s Flat~3 ^^
Plan drawings and measurements are for general guidance only. Prospective purchasers must rely on their own measurements. Thankyou.

The location, within the former lighthouse keepers’ accommodation block for Flat-3, as seen from west looking east, is indicated via this oblique photograph…
^^ Diagram Showing Flat-3 From The West ^^
^^ Flat-3 From The North Looking South ^^
^^ Showing The “Sea Cathedral” Below The Lighthouses ^^
^^ With Secret Access To Braidon Bay ^^
^^ & Catterline Beach Beyond ^^
The access to Braidon Bay Beach is via a long flight of steps at the north of the lighthouse compound. These were originally created to assist with the construction of the lighthouse station in 1897. The reason being that stone masonry supplies + timber + glass + metal were all brought in by sea, as that was the most efficient form of delivery 128 years ago.
Many lighthouse stations have bespoke piers/harbour facilities built to enable building materials to be brought in by ship and flit boat, at a time when there were no power-tools and these buildings were created by hand tools.
^^ The Old Keepers' Steps Down To The Sea Cathedral ^^
Even though generations of lighthouse keepers’ have maintained the steps, they can be uneven and slippery when wet. Particularly if the mist comes in from the sea.
That manual work also included winching material up via hoist and pully systems. Most of these have long gone, but you can still see some evidence.
This is often where you will find some form of “lighthouse pier” or “jetty”. Often overgrown with seaweed or just a remnant of the original. Sometimes something more substantial It is just one one of the unusual features of a lighthouse home… the way the building materials were often brought in by sea. Hence requiring a small pier to be built.
Please be careful when descending or ascending the steps at the “Sea Cathedral” as they originate from the 1890s (and earlier).
The Sea Cathedral is a particularly dramatic part of the lighthouse station grounds…
^^ The Sea Cathedral ^^
From the sea shore, there is an interesting walk to the the fairly secluded Braidon Bay Beach. Though care should be take when crossing the rocks and subject to tidal and weather conditions…
^^ The Sea Cathedral & Braidon Bay Beach ^^
Here is a short video to help illustrate what this place is like…
.
^^ View From The Sea Cathedral ^^
^^ On The North Side of Tod Head Lighthouse Station ^^
The next bay after Braidon, has Catterline Harbour and is excellent if you enjoy sailing, or rowing or diving etc. Even a nice pleasure….
^^ Catterline Harbour ^^
^^ The Next Bay After Braidon & Can Be Seen From Flat-3 ^^
***********
There is a particularly enthusiastic rowing club at Catterline and it can be interesting to see Tod Head Lighthouse Station from their sea view…
.
.
***********
.
Flat-3, Tod Head Lighthouse Station
Internal Photographs
|
|
\/
Entrance Door & Hallway

^^ Main Hallway, Flat-3, Tod Head Lighthouse Station ^^
.
^^ Bedroom At Flat-3, Tod Head Lighthouse Station ^^
^^ Bedroom At Flat-3, Tod Head Lighthouse Station ^^
^^ Bedroom At Flat-3, Tod Head Lighthouse Station ^^
The views from every window are picturesque, however, waking up in the morning and seeing the lighthouse tower and sea can be a delight…
^^ View From The Bedroom ^^
^^ Flat-3, Tod Head Lighthouse Station ^^
Please Note: The lighthouse tower provides a visually remarkable reminder of where you live. However, the tower itself is NOT included in the sale.
.
Moving on, here are photographs of the main lounge…
^^ Living Room ^^
^^ Flat-3, Tod Head Lighthouse Station ^^
^^ Living Room ^^
^^ Flat-3, Tod Head Lighthouse Station ^^
^^ Living Room ^^
^^ Flat-3, Tod Head Lighthouse Station ^^
^^ Living Room ^^
^^ Flat-3, Tod Head Lighthouse Station ^^
^^ Living Room ^^
^^ Flat-3, Tod Head Lighthouse Station ^^
^^ Living Room ^^
^^ Flat-3, Tod Head Ligh
thouse Station ^^
.
Then we have the kitchen…
^^ The Kitchen ^^
^^ Flat-3, Tod Head Lighthouse Station ^^
^^ The Kitchen ^^
^^ Flat-3, Tod Head Lighthouse Station ^^
The northern view is of Braidon Bay Beach…
^^ View From The Kitchen ^^
^^ Flat-3, Tod Head Lighthouse Station ^^
.
Next is the bathroom + shower + w.c…
^^ Bathroom + Shower + WC ^^
^^ Flat-3, Tod Head Lighthouse Station ^^
The views from every window in this flat are sea views…
^^ Even The Bathroom Has Sea Views ^^
***********
.
EPC Rating For Flat-3
Tod Head Lighthouse Station
^^ Tod Head Lighthouse Station, DD10 0TH ^^
^^ EPC Rating: Flat-3 ^^
***********
.
Full Disclosure
Flat-3: Tod Head Lighthouse Station
Full Disclosure (i): This building is owned by Russ McLean. He is editor of this website and founder of the previous paper-based version (here).
Full Disclosure (ii): The Unique Property Bulletin was established on Davaar Island in 1985, and is a not-for-profit publication. This website and the other sites are managed by volunteers, all of whom have helped dozens of other lighthouse folk buy and sell their lighthouse buildings. Not via an estate agency costing £1,500 to £5,000 a time ~ but from a modest feature on this site (and we maintain a Rightmove account to keep up with the times). We do not charge to advertise and find buyers for your lighthouse property.
How? With mutually supportive lighthouse-friends helping spread the word: by lighthouse folk, for lighthouse folk ~ on these websites for free.
10,000 subscribers: here and safety backup of 4,000: here. Plus the viral nature of many posts securing between 150,000 and 186,000 potential buyers for you: click here.
This declaration that the lighthouse home for sale on this page belongs to this website’s founder is made to ensure no conflict of interest arises.
***********
.
Further Details & To Arrange A Viewing
Click Here
***********
.
.
.



































